はじめての方へ
YK HOMEの家づくり
性能/デザイン
高性能規格住宅
施工事例
資料請求
お問い合わせフォーム
MENU
COMPANY
-会社概要
-はじめての方へ
-コンセプト
-資料請求
LINE UP
-YK HOMEの家づくり
-性能/デザイン
-高性能規格住宅
-施工事例
ABOUT US
-お客様の声
-安心と保証
-資金計画
-アフターフォロー
INFOMATION
-暮らしのお役立ち情報
-住宅情報
-イベント情報・ブログ
Instagram
Twitter
Facebook
PRIVACY POLICY
COMPANY
Copyright (c) YARIMIZU All Rights Reserved.
HOME
>
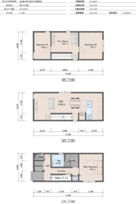
0410_ プラン集(0+2×6 全12プラン)-04
0410_ プラン集(0+2×6 全12プラン)-04
2025-07-08
3階建てプラン集
関連記事
#062 おしゃれなままコストダウンする方法 8選💅
#056 頭金なしの住宅ローン 4つの落とし穴😢🕳️
ストレージルームの上手な使い方|納戸との違いと収納計画
日田市 G様 平屋 4LDK