はじめての方へ
YK HOMEの家づくり
性能/デザイン
高性能規格住宅
施工事例
資料請求
お問い合わせフォーム
MENU
COMPANY
-会社概要
-はじめての方へ
-コンセプト
-資料請求
LINE UP
-YK HOMEの家づくり
-性能/デザイン
-高性能規格住宅
-施工事例
ABOUT US
-お客様の声
-安心と保証
-資金計画
-アフターフォロー
INFOMATION
-暮らしのお役立ち情報
-住宅情報
-イベント情報・ブログ
Instagram
Twitter
Facebook
PRIVACY POLICY
COMPANY
Copyright (c) YARIMIZU All Rights Reserved.
HOME
>
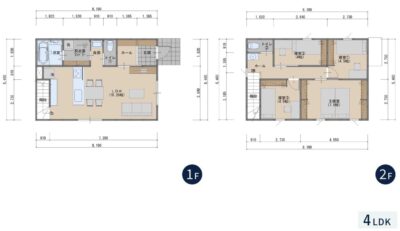
05_27坪4LDKプラン集48P-089
05_27坪4LDKプラン集48P-089
2025-07-08
2階建てプラン集
関連記事
#005 後悔しない注文住宅の作り方』〜価格編〜
【速報】先進的窓リノベ2026事業_補助額決定!
ZEH住宅とは?メリット・デメリット・補助金・ローン控除まで徹底解説|福岡で省エネ住宅を建てるなら
#024 住宅ローン審査を通すポイント